On the eastern outskirts of Markelfingen, the large district town of Radolfzell am Bodensee is planning to build a new sports and multi-purpose hall with a football pitch to the south of the old site following the fire at the old Markolfhalle.
The old hall will be replaced by a classic timber construction with a rear-ventilated timber slat facade based on the economical timber construction grid of 62.5 cm. The roof overhang in all four directions gives the building a familiar, regional character and merges the interior and exterior into a homogeneous structure.
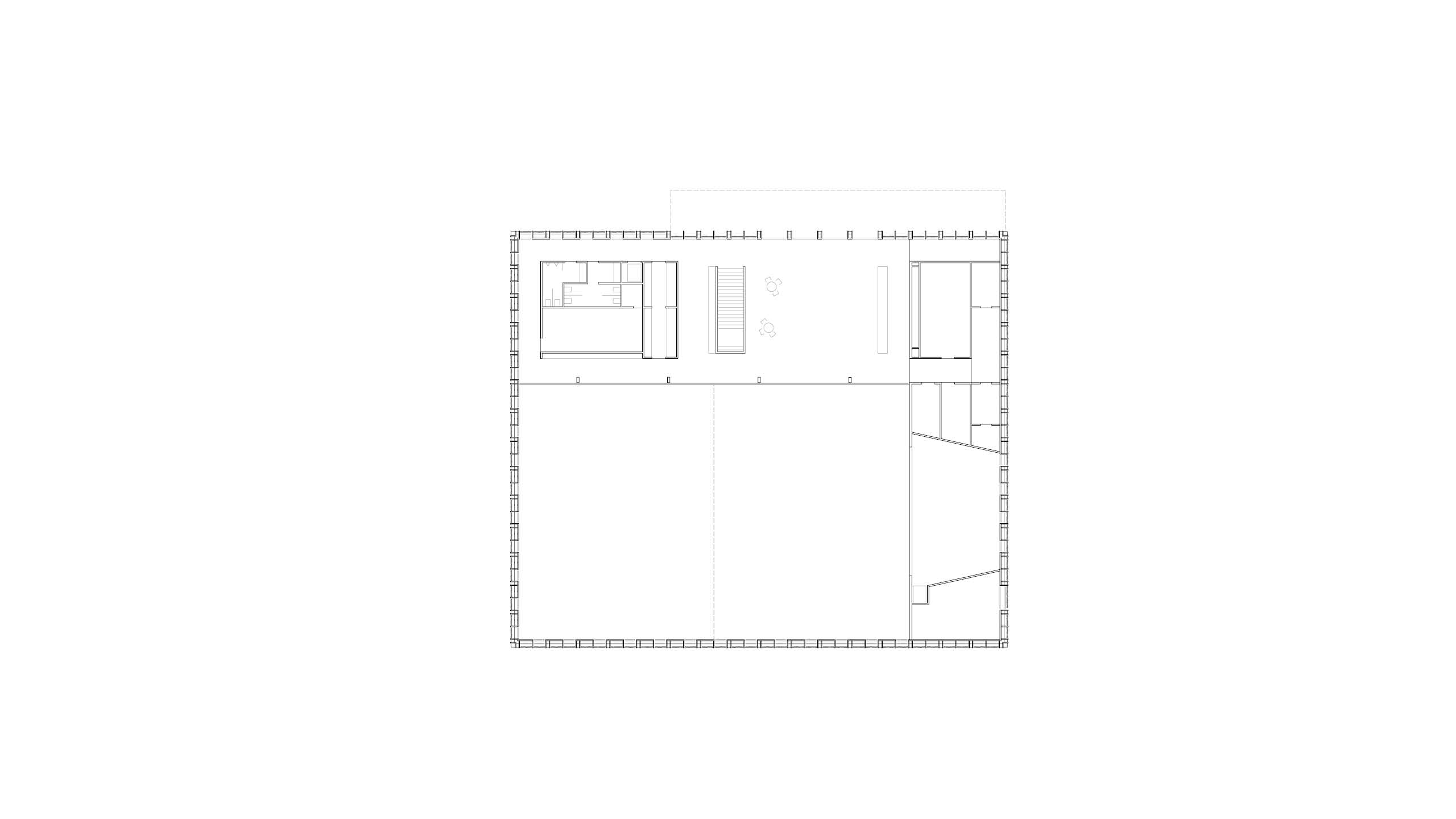
By relocating the majority of the functional rooms to level 1, visitors entering the foyer have immediate eye contact with the playing field. Only a small 'free-standing box' with a small kiosk, elevator and sanitary facilities serves the coherent use of the foyer, allowing smaller receptions, senior citizens' afternoons or similar events to be held here.
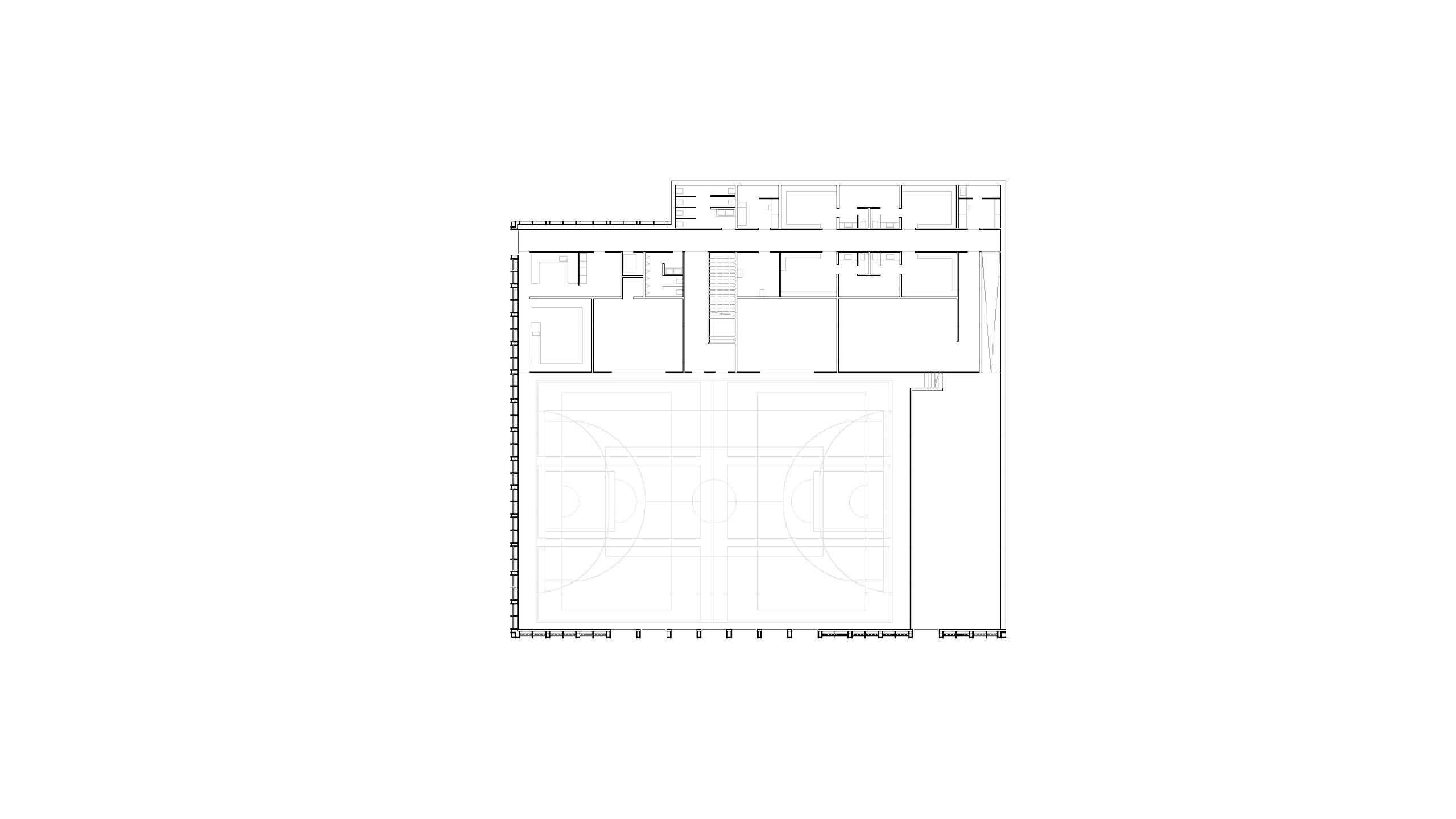
The special qualities of the architecture lie in the detailed handling of the building volume. The public part of the hall with foyer and playing field is separated from the non-public area by the continuous wall to the east, behind which various ancillary rooms are concealed. Internally, this creates a square space which, in conjunction with the square supporting grid, creates a harmonious image for visitors.

Completion: 2023
LPH: 1-8
BGF: 2.160 m²
BRI: 13.165 m³
Builder: city Radolfzell
Location: Markelfingen
Photos: Brigida González

Multipurpose hall Markelfingen