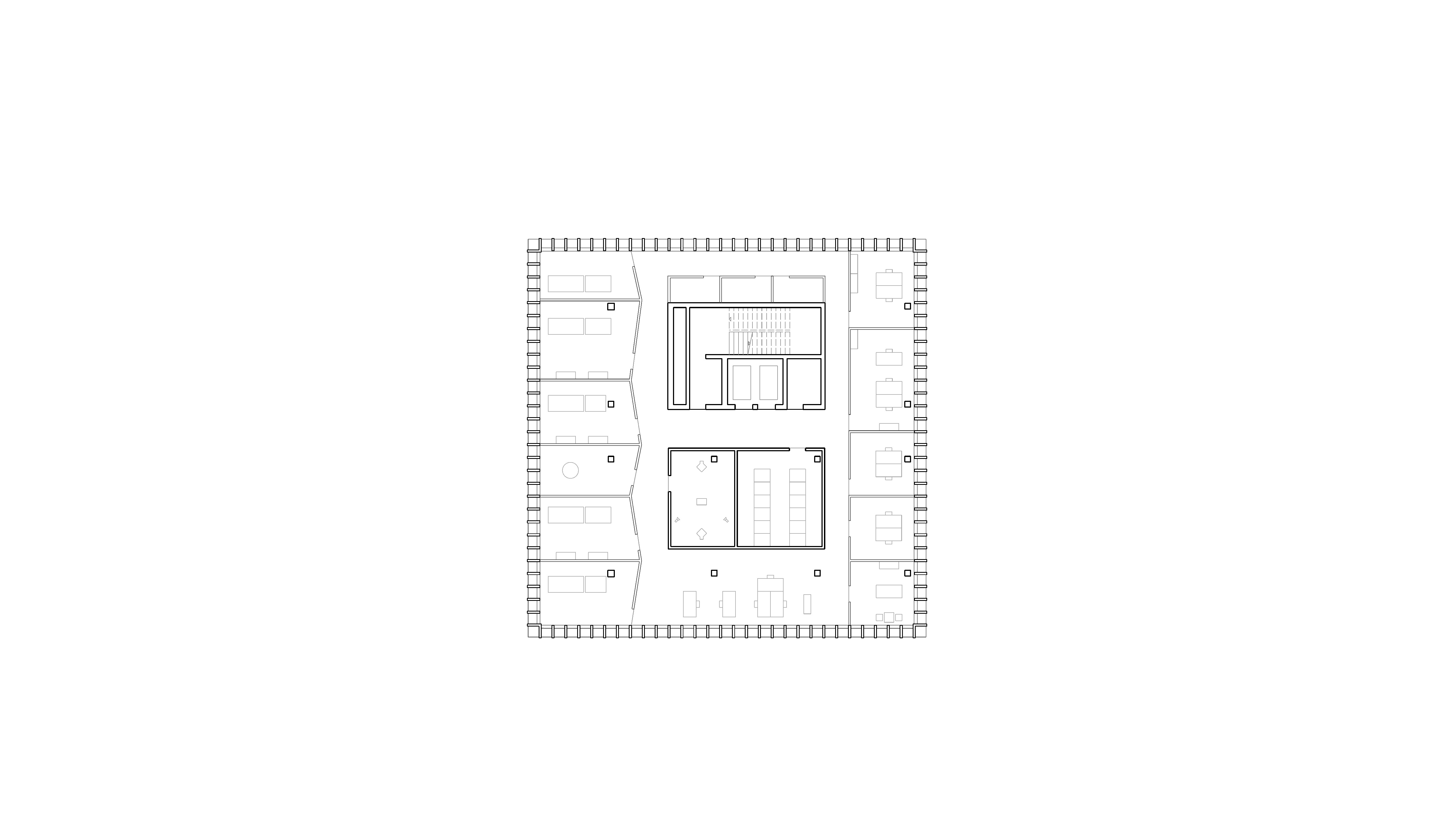
The new SWR Mannheim - Ludwigshafen broadcasting building marks a self-sufficient high point on the bridgehead. The new building, which will be completed in 2024, addresses both Friedrich-Ebert-Straße and the planned residential development and mediates in scale between its various neighbors in the urban space. While the façade radiates calm and transparency through its structured design, the sculptural design of the building reacts sensitively to the context: entrance and front zones are created that emphasize the address of the SWR, there are projections and recesses that pay respect to the residential buildings and a city balcony that opens up to the west side and the banks of the Neckar. This urban design anchors the solitary SWR building in the new Schafweide quarter.

Completion: 2024
Competition: 1st prize
BGF: 4.290 m²
BRI: 20.520 m³
Builder: SWR
Location: Mannheim Pictures: Brigida González

South-West-Broadcasting Studio, Mannheim